
人防口部节点详图做法、门框墙节点

人防口部节点详图做法、门框墙节点

人防口部节点详图做法、门框墙节点
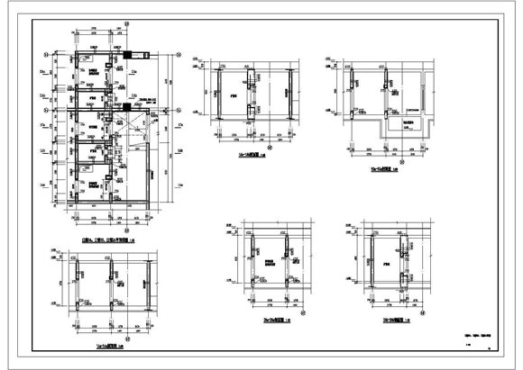
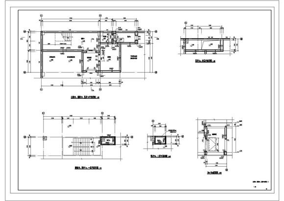
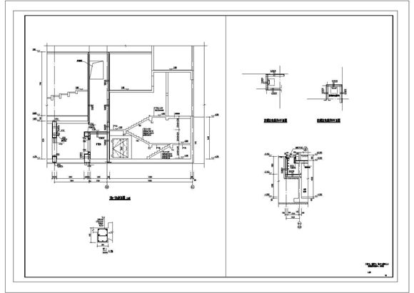
地下人防工程口部做法详图,包括临空墙,门框墙,各种配筋方式,适合给学习做人防工程的工程师们参考查看

人防口部节点详图做法、门框墙节点

人防口部节点详图做法、门框墙节点

人防口部节点详图做法、门框墙节点
地下人防工程口部做法详图,包括临空墙,门框墙,各种配筋方式,适合给学习做人防工程的工程师们参考查看
声明:资源收集自网络或用户分享,仅供学习参考,如侵犯您的权益,请联系我们处理。
不能下载?报告错误