
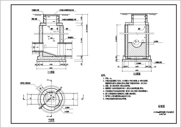
砖砌雨水井污水井大样图(S515图集转CAD版本、1000,1250检查井)
井墙及底板混凝土为C25、S4;钢筋φ-HPB235级钢,φ-HRB335级钢;钢筋锚固长度33d,搭接长度40d;基础下层筋保护层40,其它为35。座浆、抹三角灰均用1:2防水水泥砂浆。流槽用M7

砖砌雨水井污水井大样图(S515图集转CAD版本、1000,1250检查井)
井墙及底板混凝土为C25、S4;钢筋φ-HPB235级钢,φ-HRB335级钢;钢筋锚固长度33d,搭接长度40d;基础下层筋保护层40,其它为35。座浆、抹三角灰均用1:2防水水泥砂浆。流槽用M7
声明:资源收集自网络或用户分享,仅供学习参考,如侵犯您的权益,请联系我们处理。
不能下载?报告错误