
压型钢板屋面剖面CAD参考图

压型钢板屋面剖面CAD参考图

压型钢板屋面剖面CAD参考图
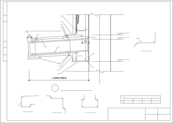
本工程为压型钢板屋面剖面CAD参考图,包含轻型金属压型钢板(以下简称压型钢板)是采用彩色涂层钢板,经自动成型生产线辊轧而成的屋面和墙面材料,适用于各种压型钢板,但对不同的压型钢板组合,应选用不同的

压型钢板屋面剖面CAD参考图

压型钢板屋面剖面CAD参考图

压型钢板屋面剖面CAD参考图
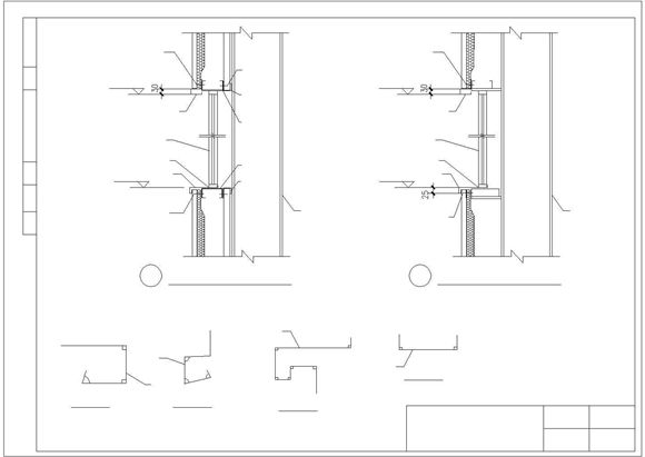
本工程为压型钢板屋面剖面CAD参考图,包含轻型金属压型钢板(以下简称压型钢板)是采用彩色涂层钢板,经自动成型生产线辊轧而成的屋面和墙面材料,适用于各种压型钢板,但对不同的压型钢板组合,应选用不同的
声明:资源收集自网络或用户分享,仅供学习参考,如侵犯您的权益,请联系我们处理。
不能下载?报告错误