规范网
更新
当前位置:
首页
资料
内容详情
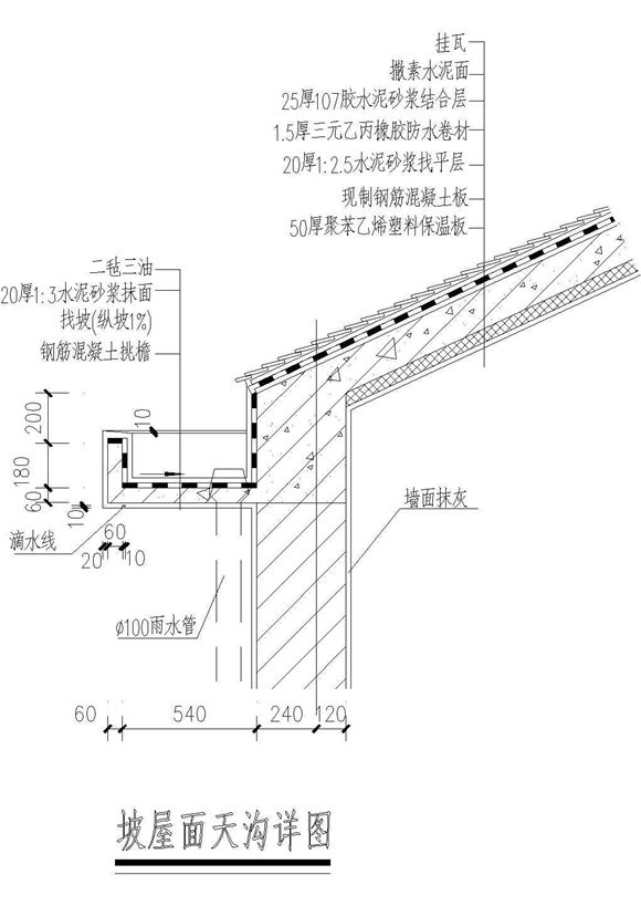
坡屋面天沟详图
帮助
举报
收藏
上传文档
下载
预览图
坡屋面天沟详图 本资料为:坡屋面天沟详图,共1张图纸,可供参考
坡屋面天沟详图
收藏
下载
声明:本站为网络服务提供者及网络索引服务平台资源索引自网络/用户分享,如有版权问题,请
联系
站方删除。
不能下载?报告错误
下页:
女儿墙压顶详图.
相关推荐
承插型盘扣式钢管脚手架全套培训资料(含ppt课件、视频、表格、方案共9个文件)
碧桂园 精装修工程瓷片及抛光砖施工工艺 63页培训PPT资料
录井资料质量控制规范 (SY/T 6438-2024)
井中地震资料采集技术规程 (SY/T 5454-2024)
1∶5000 1∶10000基础地理信息数据更新成果资料汇交技术要求 (DB34/T 4983-2025)
坡屋面天沟详图
下载
免费下载
用户名称:
262624
注册时间:
2023-02-09
认证方式:
手机认证
资源帮助
上传文档
标签
采购总结
05s502
给排水
学校领导讲话稿
退刀槽标准
档案规范
建筑标准
应急管理规范
体育规范
海南省标准
合同模板
个人自传
角钢标准
社会实践报告
工程总结
食用油标准
光伏
硬度标准
旅游规范
圆钢标准
幼儿园工作计划
教学计划
医院总结
15s202
文物保护规范
指导性国家标准
铆钉标准
海洋规范