当前位置:首页  资料内容详情

冷库全套建筑设计方案图纸

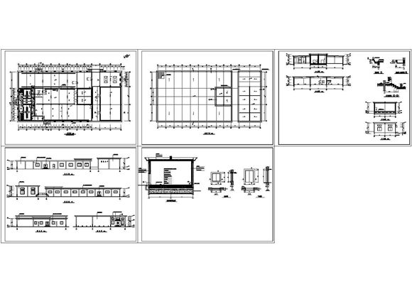
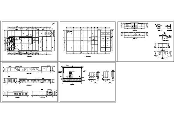
冷库全套建筑设计方案图纸 冷库全套建筑设计方案图纸 本图纸为冷库全套建筑设计方案图纸,内容包括:屋顶平面图、一层平面图、立面图等图纸,可供参考。

冷库全套建筑设计方案图纸

声明:本站为网络服务提供者及网络索引服务平台资源索引自网络/用户分享,如有版权问题,请联系站方删除。

不能下载?报告错误