
5米、25米洗车槽施工详图(共2张图纸)

5米、25米洗车槽施工详图(共2张图纸)

5米、25米洗车槽施工详图(共2张图纸)
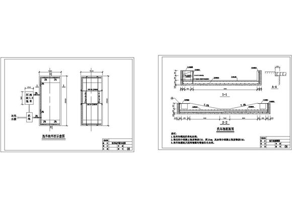
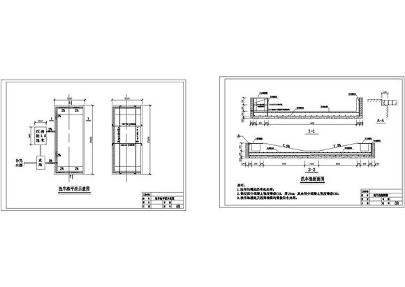
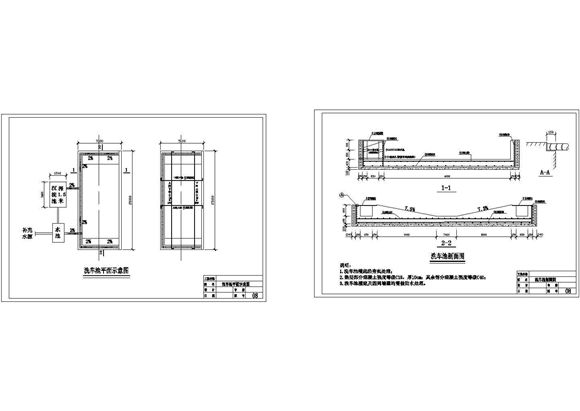
本资料为:5米、25米洗车槽施工详图(共2张图纸),包括:洗车池平面示意图,洗车池剖面图,设计精准,可供网友下载参考

5米、25米洗车槽施工详图(共2张图纸)

5米、25米洗车槽施工详图(共2张图纸)

5米、25米洗车槽施工详图(共2张图纸)
本资料为:5米、25米洗车槽施工详图(共2张图纸),包括:洗车池平面示意图,洗车池剖面图,设计精准,可供网友下载参考
声明:资源收集自网络或用户分享,仅供学习参考,如侵犯您的权益,请联系我们处理。
不能下载?报告错误