
某单层彩钢夹芯板房结构设计cad施工图

某单层彩钢夹芯板房结构设计cad施工图

某单层彩钢夹芯板房结构设计cad施工图
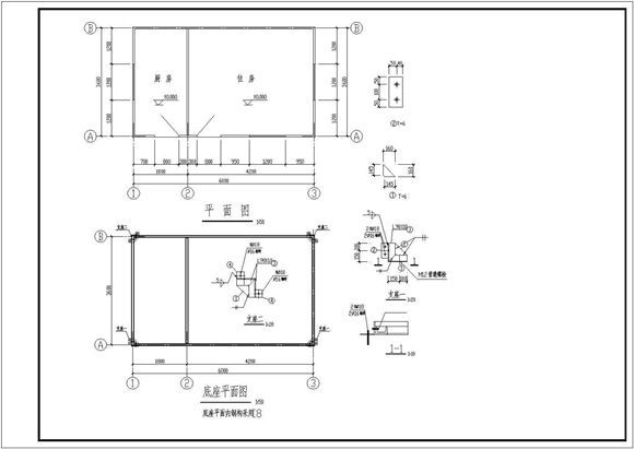
本资料为某单层彩钢夹芯板房结构设计cad施工图,图纸包括:内外彩钢墙连接图、正立面图、排水平面图等,设计精准,可供网友下载参考。

某单层彩钢夹芯板房结构设计cad施工图

某单层彩钢夹芯板房结构设计cad施工图

某单层彩钢夹芯板房结构设计cad施工图
本资料为某单层彩钢夹芯板房结构设计cad施工图,图纸包括:内外彩钢墙连接图、正立面图、排水平面图等,设计精准,可供网友下载参考。
声明:资源收集自网络或用户分享,仅供学习参考,如侵犯您的权益,请联系我们处理。
不能下载?报告错误