
某钢结构玻璃栈道结构施工cad图_玻璃栈道施工

某钢结构玻璃栈道结构施工cad图_玻璃栈道施工

某钢结构玻璃栈道结构施工cad图_玻璃栈道施工
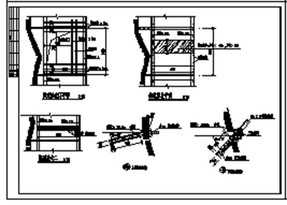
本资料为某钢结构玻璃栈道结构施工cad图,资料内容包括栈道设计说明,上层栈道平面图,下层栈道平面图,栈道检查口平面图,栈道剖面图可供参考,值得设计师下载

某钢结构玻璃栈道结构施工cad图_玻璃栈道施工

某钢结构玻璃栈道结构施工cad图_玻璃栈道施工

某钢结构玻璃栈道结构施工cad图_玻璃栈道施工
本资料为某钢结构玻璃栈道结构施工cad图,资料内容包括栈道设计说明,上层栈道平面图,下层栈道平面图,栈道检查口平面图,栈道剖面图可供参考,值得设计师下载
声明:资源收集自网络或用户分享,仅供学习参考,如侵犯您的权益,请联系我们处理。
不能下载?报告错误