
某农村小型自来水厂水处理工艺流程图纸

某农村小型自来水厂水处理工艺流程图纸

某农村小型自来水厂水处理工艺流程图纸
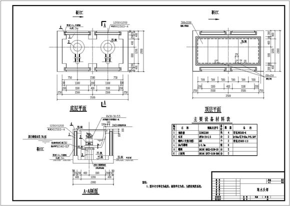
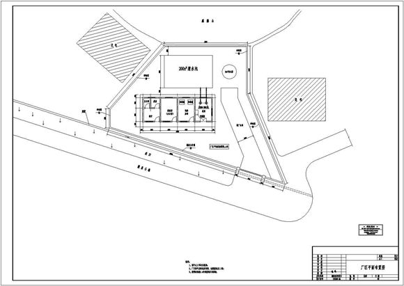
本资料为某农村小型自来水厂水处理工艺流程图纸,含效果图,资料内容包括:各种设备设计说明,设备平面图,设备、工艺立面图,各室设计图,控制图,图纸目录,基础详图,剖面图等,资料详细,可供参考。

某农村小型自来水厂水处理工艺流程图纸

某农村小型自来水厂水处理工艺流程图纸

某农村小型自来水厂水处理工艺流程图纸
本资料为某农村小型自来水厂水处理工艺流程图纸,含效果图,资料内容包括:各种设备设计说明,设备平面图,设备、工艺立面图,各室设计图,控制图,图纸目录,基础详图,剖面图等,资料详细,可供参考。
声明:资源收集自网络或用户分享,仅供学习参考,如侵犯您的权益,请联系我们处理。
不能下载?报告错误