当前位置:首页  资料内容详情

污水格栅井建施参考图

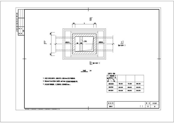
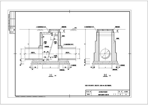
污水格栅井建施参考图 污水格栅井建施参考图 本工程为污水格栅井建施参考图,包含平面图等,图纸内容完整,表达清晰,制图严谨,欢迎设计师下载使用。

污水格栅井建施参考图

声明:本站为网络服务提供者及网络索引服务平台资源索引自网络/用户分享,如有版权问题,请联系站方删除。

不能下载?报告错误