当前位置:首页  资料内容详情

某公司母线槽安装支架图

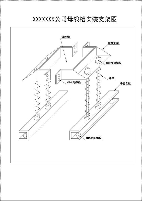
某公司母线槽安装支架图 某公司母线槽安装支架图 本工程为某公司母线槽安装支架图,包含安装支架图。图纸内容完整,表达清晰,制图严谨,欢迎设计师下载使用。

某公司母线槽安装支架图

声明:本站为网络服务提供者及网络索引服务平台资源索引自网络/用户分享,如有版权问题,请联系站方删除。

不能下载?报告错误