当前位置:首页  资料内容详情

全套集水井设计CAD图集

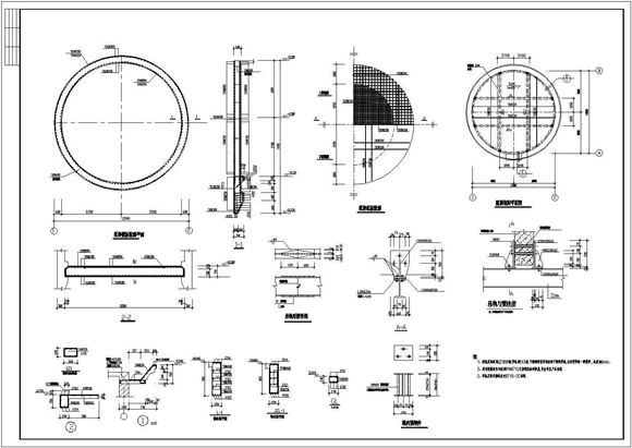
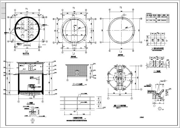
全套集水井设计CAD图集 全套集水井设计CAD图集 本图纸为全套集水井设计CAD图集,内容包括:立面图、剖面图、屋顶平面图等图纸,可供参考。

全套集水井设计CAD图集

声明:本站为网络服务提供者及网络索引服务平台资源索引自网络/用户分享,如有版权问题,请联系站方删除。

不能下载?报告错误