
太阳能路灯全套(cad)图纸

太阳能路灯全套(cad)图纸

太阳能路灯全套(cad)图纸
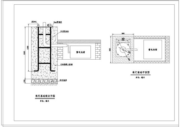
本资料为太阳能路灯全套(cad)图纸,其包含的内容为道路横断面示意图,灯型立面图,路灯基础做法详图等内容,设计详实规范,可供下载参考。

太阳能路灯全套(cad)图纸

太阳能路灯全套(cad)图纸

太阳能路灯全套(cad)图纸
本资料为太阳能路灯全套(cad)图纸,其包含的内容为道路横断面示意图,灯型立面图,路灯基础做法详图等内容,设计详实规范,可供下载参考。
声明:资源收集自网络或用户分享,仅供学习参考,如侵犯您的权益,请联系我们处理。
不能下载?报告错误