规范网
更新
当前位置:
规范网
资料
内容详情
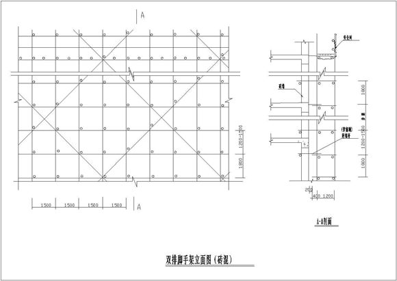
双排脚手架立面图CAD图纸
双排脚手架立面图CAD图纸
本资料为:双排脚手架立面图CAD图纸,共1张图纸,设计精准规范,可供设计师参考。
加入收藏
下载文件
声明:资源收集自网络或用户分享,仅供学习参考,如侵犯您的权益,请联系我们处理。
不能下载?报告错误
下页:
汽车吊,汽车泵等史上最全CAD图例
相关推荐
承插型盘扣式钢管脚手架全套培训资料(含ppt课件、视频、表格、方案共9个文件)
碧桂园 精装修工程瓷片及抛光砖施工工艺 63页培训PPT资料
录井资料质量控制规范 (SY/T 6438-2024)
井中地震资料采集技术规程 (SY/T 5454-2024)
1∶5000 1∶10000基础地理信息数据更新成果资料汇交技术要求 (DB34/T 4983-2025)
双排脚手架立面图CAD图纸
下载文件
免费下载
标签
生产总结
动平衡标准
林业规范
广播稿
水利规范
城市轨道
重庆市标准
退刀槽标准
无缝管标准
布线标准
链轮标准
图集
电源线标准
螺栓标准
垫圈标准
密封圈标准
管道标准
电动自行车标准
教育规范
交通运输规范
水产规范
电气
建筑工程规范
西藏藏族自治区标准
贵州省标准
15j401
个人自传
阻燃标准