当前位置:首页  资料内容详情

三菱电梯各种类型电梯样本详细图纸(cad)

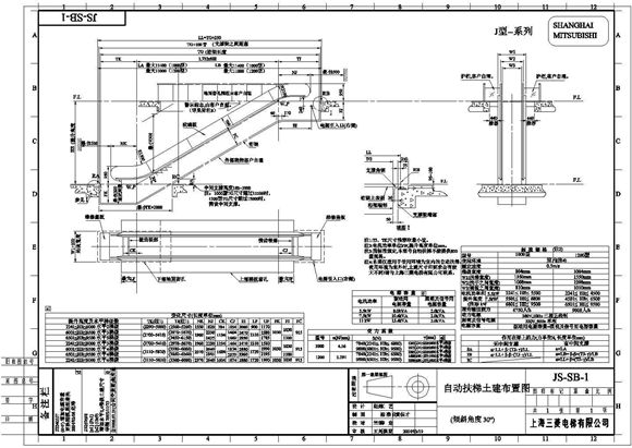
三菱电梯各种类型电梯样本详细图纸(cad) 本资料为三菱电梯各种类型电梯样本详细图纸,其包含的内容为自动扶梯土建布置图,层门留孔图,无机房客梯-1050kg宽轿厢等内容,设计详实规范,可供下载参考。

三菱电梯各种类型电梯样本详细图纸(cad)

声明:本站为网络服务提供者及网络索引服务平台资源索引自网络/用户分享,如有版权问题,请联系站方删除。

不能下载?报告错误