当前位置:首页  资料内容详情

工厂厂区路灯照明电气设计图

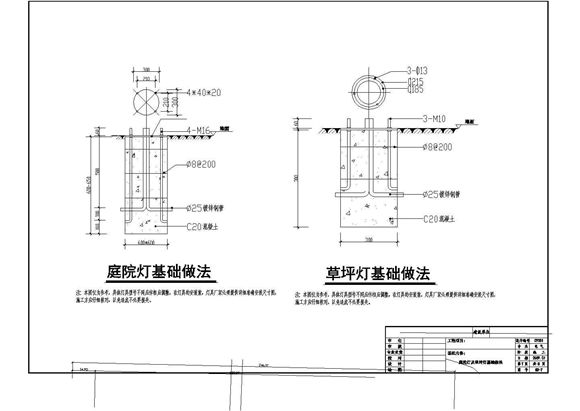
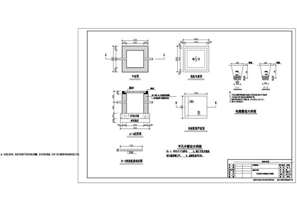
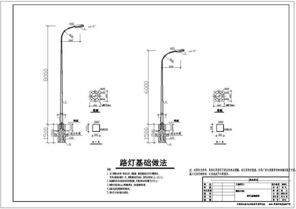
工厂厂区路灯照明电气设计图 工厂厂区路灯照明电气设计图 工厂厂区路灯照明电气设计图 本图纸为工厂厂区路灯照明电气设计图,内容包括:路灯箱安装做法、照明控制原理图、庭院灯基础做法等图纸,可供参考。

工厂厂区路灯照明电气设计图

声明:本站为网络服务提供者及网络索引服务平台资源索引自网络/用户分享,如有版权问题,请联系站方删除。

不能下载?报告错误