
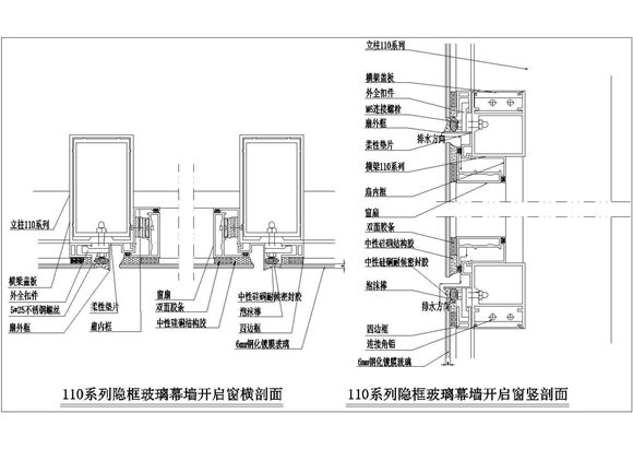
隐框玻璃幕墙开启窗节点详图
本图纸为隐框玻璃幕墙开启窗节点详图,图纸包含着110系列隐框玻璃幕墙开启窗横剖面,110系列隐框玻璃幕墙开启窗竖剖面,图纸内容完整,表达清晰,制图严谨,欢迎设计师下载使用。

隐框玻璃幕墙开启窗节点详图
本图纸为隐框玻璃幕墙开启窗节点详图,图纸包含着110系列隐框玻璃幕墙开启窗横剖面,110系列隐框玻璃幕墙开启窗竖剖面,图纸内容完整,表达清晰,制图严谨,欢迎设计师下载使用。
声明:资源收集自网络或用户分享,仅供学习参考,如侵犯您的权益,请联系我们处理。
不能下载?报告错误