
竖明横隐玻璃幕墙节点大样图

竖明横隐玻璃幕墙节点大样图

竖明横隐玻璃幕墙节点大样图
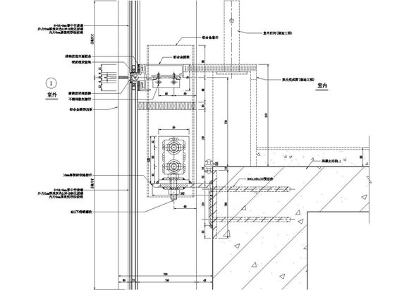
本资料为竖明横隐玻璃幕墙节点大样图,图纸包括:幕墙纵剖节点图、幕墙纵剖节点图(层间防火、幕墙连接件横剖节点图、幕墙横剖节点图、幕墙连接件横剖节点图、幕墙连接件纵剖节点图等,设计精准,内容详细,可供设计

竖明横隐玻璃幕墙节点大样图

竖明横隐玻璃幕墙节点大样图

竖明横隐玻璃幕墙节点大样图
本资料为竖明横隐玻璃幕墙节点大样图,图纸包括:幕墙纵剖节点图、幕墙纵剖节点图(层间防火、幕墙连接件横剖节点图、幕墙横剖节点图、幕墙连接件横剖节点图、幕墙连接件纵剖节点图等,设计精准,内容详细,可供设计
声明:资源收集自网络或用户分享,仅供学习参考,如侵犯您的权益,请联系我们处理。
不能下载?报告错误