
21套隔墙节点图(卫生间隔墙节点、玻璃隔墙节点、墙面隔断节点)

21套隔墙节点图(卫生间隔墙节点、玻璃隔墙节点、墙面隔断节点)

21套隔墙节点图(卫生间隔墙节点、玻璃隔墙节点、墙面隔断节点)
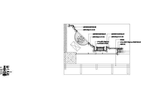
本图纸为21套隔墙节点图(卫生间隔墙节点、玻璃隔墙节点、墙面隔断节点),图纸包含着轻钢龙骨隔墙、轻钢龙骨石膏板隔墙、轻钢龙骨曲面墙组合示意图、门窗洞口龙骨加强构造、粘贴增强纤维水泥板墙面、防火玻璃隔

21套隔墙节点图(卫生间隔墙节点、玻璃隔墙节点、墙面隔断节点)

21套隔墙节点图(卫生间隔墙节点、玻璃隔墙节点、墙面隔断节点)

21套隔墙节点图(卫生间隔墙节点、玻璃隔墙节点、墙面隔断节点)
本图纸为21套隔墙节点图(卫生间隔墙节点、玻璃隔墙节点、墙面隔断节点),图纸包含着轻钢龙骨隔墙、轻钢龙骨石膏板隔墙、轻钢龙骨曲面墙组合示意图、门窗洞口龙骨加强构造、粘贴增强纤维水泥板墙面、防火玻璃隔
声明:资源收集自网络或用户分享,仅供学习参考,如侵犯您的权益,请联系我们处理。
不能下载?报告错误