
精选-48个常用台阶坡道设计详细图

精选-48个常用台阶坡道设计详细图

精选-48个常用台阶坡道设计详细图
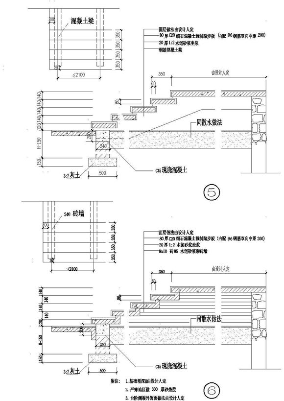
本资料为48个常用台阶坡道设计详细图,其包含的内容为室外常用台阶详图,自行车坡道平剖面图,入口台阶与残疾人坡道详图,等内容,设计详实规范,可供下载参考。

精选-48个常用台阶坡道设计详细图

精选-48个常用台阶坡道设计详细图

精选-48个常用台阶坡道设计详细图
本资料为48个常用台阶坡道设计详细图,其包含的内容为室外常用台阶详图,自行车坡道平剖面图,入口台阶与残疾人坡道详图,等内容,设计详实规范,可供下载参考。
声明:资源收集自网络或用户分享,仅供学习参考,如侵犯您的权益,请联系我们处理。
不能下载?报告错误