
某大酒店消防喷淋改造cad施工图.(标注详细)

某大酒店消防喷淋改造cad施工图.(标注详细)
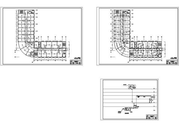
本资料为:某大酒店消防喷淋改造cad施工图(标注详细),包括:消防报警改造工程、消防喷淋改造工程、消防改造工程、等,设计精准规范,可供设计师参考使用。

某大酒店消防喷淋改造cad施工图.(标注详细)

某大酒店消防喷淋改造cad施工图.(标注详细)
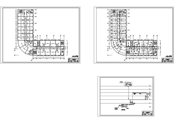
本资料为:某大酒店消防喷淋改造cad施工图(标注详细),包括:消防报警改造工程、消防喷淋改造工程、消防改造工程、等,设计精准规范,可供设计师参考使用。
声明:资源收集自网络或用户分享,仅供学习参考,如侵犯您的权益,请联系我们处理。
不能下载?报告错误