
某工地大门门楼设计CAD全套建筑施工图(含效果图)

某工地大门门楼设计CAD全套建筑施工图(含效果图)
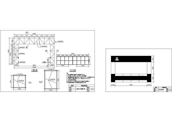
本图纸为某工地大门门楼设计CAD全套建筑施工图(含效果图);包括:门楼立面图、大门立面图、1-1剖面图、2-2剖面图、说明、效果图等;设计规范,可供参考学习。

某工地大门门楼设计CAD全套建筑施工图(含效果图)

某工地大门门楼设计CAD全套建筑施工图(含效果图)
本图纸为某工地大门门楼设计CAD全套建筑施工图(含效果图);包括:门楼立面图、大门立面图、1-1剖面图、2-2剖面图、说明、效果图等;设计规范,可供参考学习。
声明:资源收集自网络或用户分享,仅供学习参考,如侵犯您的权益,请联系我们处理。
不能下载?报告错误