规范网
更新
当前位置:
规范网
资料
内容详情
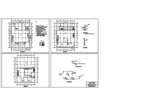
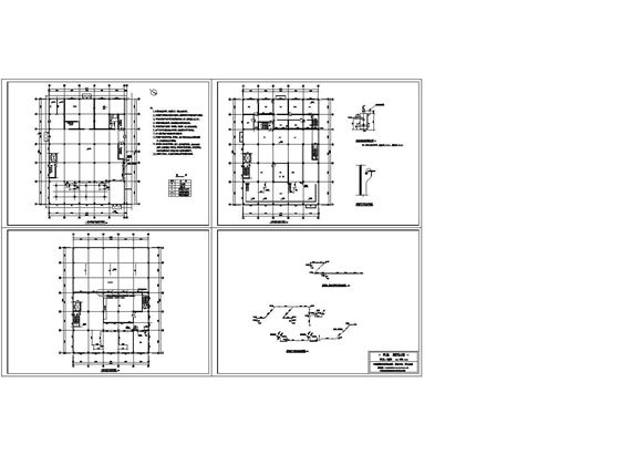
压缩空气管路设计图纸
压缩空气管路设计图纸
压缩空气管路设计图纸
本图纸是某生产厂房附属楼的压缩空气工程,真诚地希望大家提出宝贵的意见和建议。
加入收藏
下载文件
声明:资源收集自网络或用户分享,仅供学习参考,如侵犯您的权益,请联系我们处理。
不能下载?报告错误
下页:
采暖管道平面布置图
相关推荐
坡面屋顶阵列前后间距计算和遮挡物影长计算公式V1.1
光伏专用电缆选型计算,汇流箱至逆变器电缆选型计算,短路电流计算,组串数量计算
风力发电经济评价模型案例
风电 水电效益测算分析表
分布式光伏工程报价参考计算表格
压缩空气管路设计图纸
下载文件
免费下载
标签
链轮标准
无缝钢管标准
花键标准
检讨书
讲话稿
福建省标准
暖通
陕西省标准
辽宁省标准
手册
认证认可规范
个人工作计划
安全带标准
个人自传
矿泉水标准
机械制图标准
物资管理规范
体育规范
包装标准
机械规范
新疆维吾尔自治区标准
通知模板
图集
农业规范
最新更新
电子规范
10j301
土地管理规范