当前位置:首页  资料内容详情

除油池隔油池土建全套图

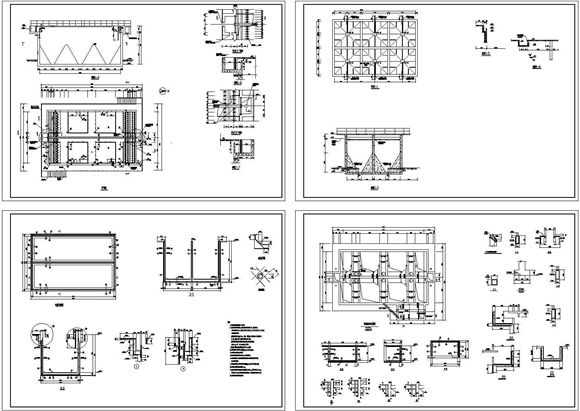
除油池隔油池土建全套图 本图纸为除油池隔油池土建全套图。内容有顶板结构布置图,配筋平面图,剖面图。内容详尽,可供参考。

除油池隔油池土建全套图

声明:本站为网络服务提供者及网络索引服务平台资源索引自网络/用户分享,如有版权问题,请联系站方删除。

不能下载?报告错误