
某仿古中式门头建筑设计cad全套施工图(标注详细)

某仿古中式门头建筑设计cad全套施工图(标注详细)
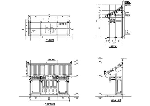
本图纸为某仿古中式门头建筑设计cad全套施工图(标注详细);包括:平面图、正立面图、侧立面图、1-1剖面图等;设计规范,可供参考学习。

某仿古中式门头建筑设计cad全套施工图(标注详细)

某仿古中式门头建筑设计cad全套施工图(标注详细)
本图纸为某仿古中式门头建筑设计cad全套施工图(标注详细);包括:平面图、正立面图、侧立面图、1-1剖面图等;设计规范,可供参考学习。
声明:资源收集自网络或用户分享,仅供学习参考,如侵犯您的权益,请联系我们处理。
不能下载?报告错误