当前位置:首页  资料内容详情

楼面及内外墙变形缝cad图纸设计

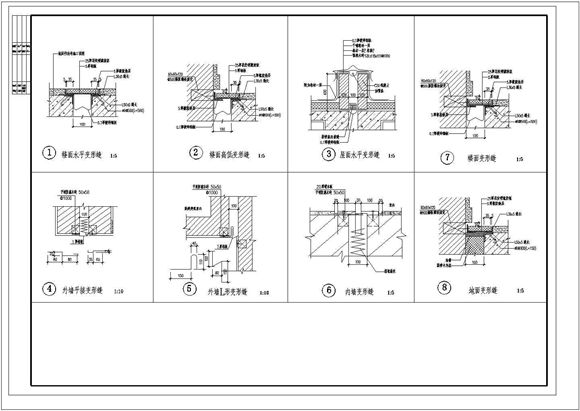
楼面及内外墙变形缝cad图纸设计 本工程资料为:楼面及内外墙变形缝图,图纸包括:地面变形缝,设计规范,可供设计师下载参考学习。

楼面及内外墙变形缝cad图纸设计

声明:本站为网络服务提供者及网络索引服务平台资源索引自网络/用户分享,如有版权问题,请联系站方删除。

不能下载?报告错误