
上海某四星级酒店标准层平面设计CAD图纸(5套方案)

上海某四星级酒店标准层平面设计CAD图纸(5套方案)

上海某四星级酒店标准层平面设计CAD图纸(5套方案)
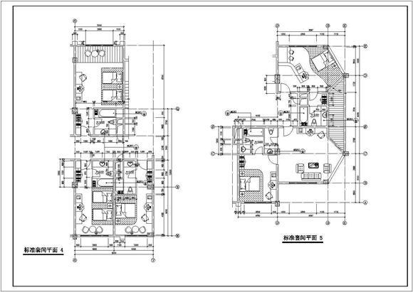
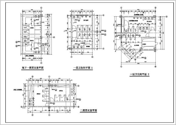
本资料为上海某四星级酒店标准层平面设计CAD图纸,其中包含:5张标准间平面图,卫生间平面图等,可供设计师采纳参考!

上海某四星级酒店标准层平面设计CAD图纸(5套方案)

上海某四星级酒店标准层平面设计CAD图纸(5套方案)

上海某四星级酒店标准层平面设计CAD图纸(5套方案)
本资料为上海某四星级酒店标准层平面设计CAD图纸,其中包含:5张标准间平面图,卫生间平面图等,可供设计师采纳参考!
声明:资源收集自网络或用户分享,仅供学习参考,如侵犯您的权益,请联系我们处理。
不能下载?报告错误