
某山体护坡施工cad图_山体护坡施工

某山体护坡施工cad图_山体护坡施工

某山体护坡施工cad图_山体护坡施工
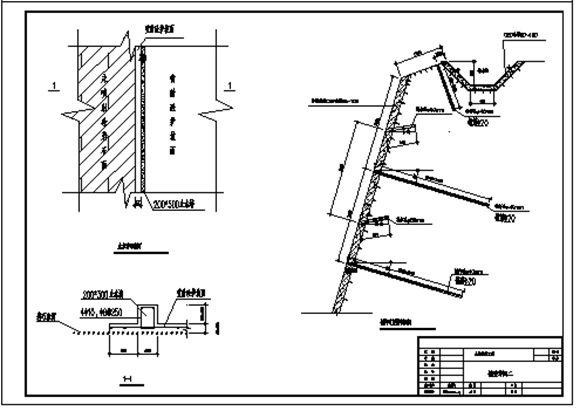
本资料为某山体护坡施工cad图,资料内容包括喷锚钢筋网布置图,放大示意图,止水墙示意图,锚杆布置横剖面图,护坡总平面图可供参考,值得设计师下载

某山体护坡施工cad图_山体护坡施工

某山体护坡施工cad图_山体护坡施工

某山体护坡施工cad图_山体护坡施工
本资料为某山体护坡施工cad图,资料内容包括喷锚钢筋网布置图,放大示意图,止水墙示意图,锚杆布置横剖面图,护坡总平面图可供参考,值得设计师下载
声明:资源收集自网络或用户分享,仅供学习参考,如侵犯您的权益,请联系我们处理。
不能下载?报告错误