
40000方污水处理厂高密度沉淀池设计计算

40000方污水处理厂高密度沉淀池设计计算

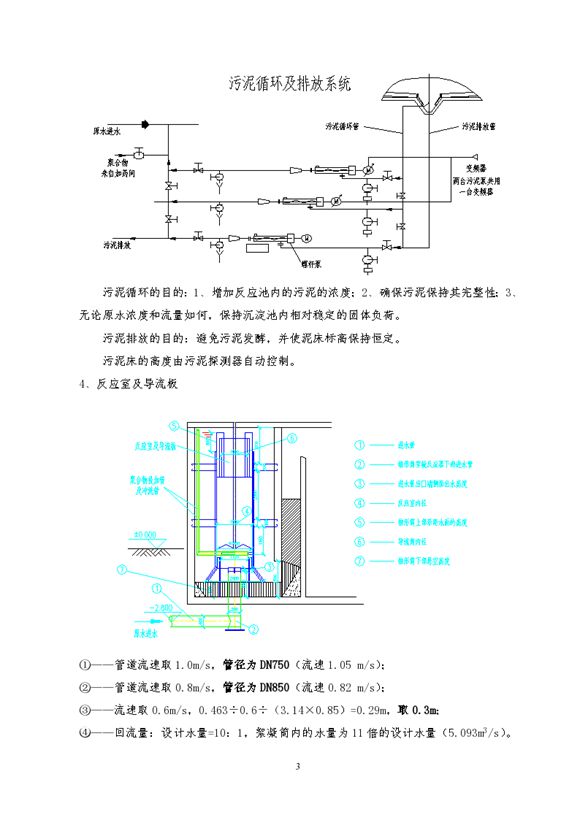
40000方污水处理厂高密度沉淀池设计计算
比较详细的计算过程及公式。澄清池:是bai指同时完成混合、反应和絮体沉降过程du的构筑物。絮zhi凝沉淀池:也可以设计成dao混合区、反应区、沉淀区,但它是在纵向上排布的,就是污水进来后,一次经过

40000方污水处理厂高密度沉淀池设计计算

40000方污水处理厂高密度沉淀池设计计算

40000方污水处理厂高密度沉淀池设计计算
比较详细的计算过程及公式。澄清池:是bai指同时完成混合、反应和絮体沉降过程du的构筑物。絮zhi凝沉淀池:也可以设计成dao混合区、反应区、沉淀区,但它是在纵向上排布的,就是污水进来后,一次经过
声明:资源收集自网络或用户分享,仅供学习参考,如侵犯您的权益,请联系我们处理。
不能下载?报告错误