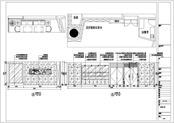
新中式茶餐厅室内装修图(含效果) 新中式茶餐厅室内装修图(含效果) 新中式茶餐厅室内装修图(含效果) 本图纸为:新中式茶餐厅室内装修图(含效果),图纸内容包含:平面布置图、地面布置图、顶面布置图、顶面材料图、平面尺寸图、立面图:(棋牌室、备餐区、展区)另附:效果图2张。
新中式茶餐厅室内装修图(效果图)
新中式茶餐厅室内装修图(含效果) 新中式茶餐厅室内装修图(含效果) 新中式茶餐厅室内装修图(含效果) 本图纸为:新中式茶餐厅室内装修图(含效果),图纸内容包含:平面布置图、地面布置图、顶面布置图、顶面材料图、平面尺寸图、立面图:(棋牌室、备餐区、展区)另附:效果图2张。
新中式茶餐厅室内装修图(效果图)