
北方某四合院建筑设计图(含效果图)

北方某四合院建筑设计图(含效果图)

北方某四合院建筑设计图(含效果图)
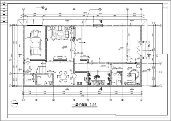
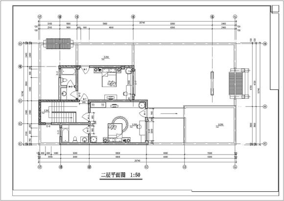
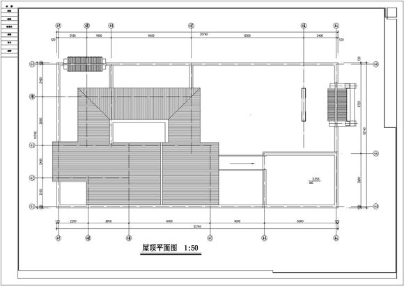
本资料为北方某四合院建筑设计图,图纸包括平面图、侧立面、剖面图、门窗大样图、别院平立剖面图等,内容详细可供参考。

北方某四合院建筑设计图(含效果图)

北方某四合院建筑设计图(含效果图)

北方某四合院建筑设计图(含效果图)
本资料为北方某四合院建筑设计图,图纸包括平面图、侧立面、剖面图、门窗大样图、别院平立剖面图等,内容详细可供参考。
声明:资源收集自网络或用户分享,仅供学习参考,如侵犯您的权益,请联系我们处理。
不能下载?报告错误