当前位置:首页  资料内容详情

点式玻璃幕墙详细结构图

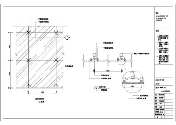
点式玻璃幕墙详细结构图(含说明) 点式玻璃幕墙详细结构图(含说明) 本图纸为点式玻璃幕墙详细结构图(含说明),内容包括:立面图、剖面图等内容,可供参考。

点式玻璃幕墙详细结构图

声明:本站为网络服务提供者及网络索引服务平台资源索引自网络/用户分享,如有版权问题,请联系站方删除。

不能下载?报告错误