
北京天坛医院改造加固项目

北京天坛医院改造加固项目

北京天坛医院改造加固项目
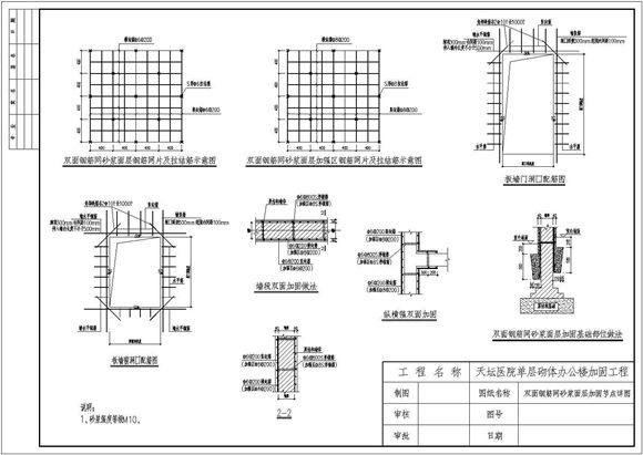
本图纸为北京天坛医院改造加固项目,内容包括:天坛医院单层砌体办公楼加固平面图、天坛医院单层砌体办公楼平面布置图、混凝土板墙加固外墙基础部位做法等内容,图纸内容详实,可供大家下载参考。

北京天坛医院改造加固项目

北京天坛医院改造加固项目

北京天坛医院改造加固项目
本图纸为北京天坛医院改造加固项目,内容包括:天坛医院单层砌体办公楼加固平面图、天坛医院单层砌体办公楼平面布置图、混凝土板墙加固外墙基础部位做法等内容,图纸内容详实,可供大家下载参考。
声明:资源收集自网络或用户分享,仅供学习参考,如侵犯您的权益,请联系我们处理。
不能下载?报告错误