
3层框架结构双拼别墅全套建筑设计CAD图纸(含架空层/每户251平米)

3层框架结构双拼别墅全套建筑设计CAD图纸(含架空层/每户251平米)

3层框架结构双拼别墅全套建筑设计CAD图纸(含架空层/每户251平米)
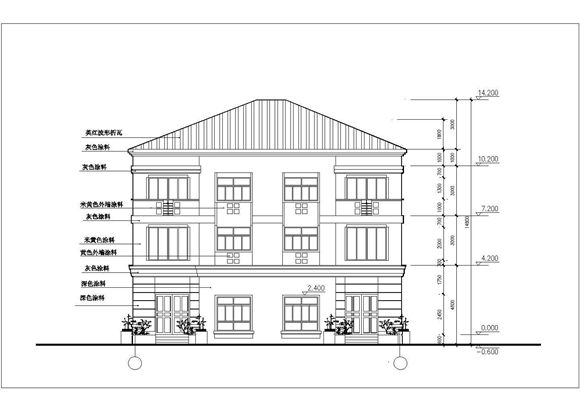
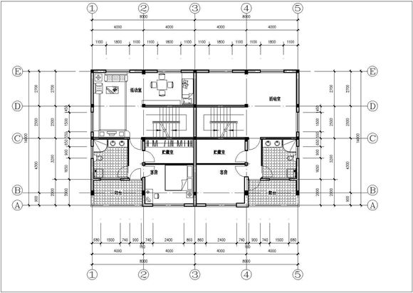
本资料为3层框架结构双拼别墅全套建筑设计CAD图纸,其中包含:各层平面图,屋顶平面图,立剖面图等,可供设计师采纳参考!

3层框架结构双拼别墅全套建筑设计CAD图纸(含架空层/每户251平米)

3层框架结构双拼别墅全套建筑设计CAD图纸(含架空层/每户251平米)

3层框架结构双拼别墅全套建筑设计CAD图纸(含架空层/每户251平米)
本资料为3层框架结构双拼别墅全套建筑设计CAD图纸,其中包含:各层平面图,屋顶平面图,立剖面图等,可供设计师采纳参考!
声明:资源收集自网络或用户分享,仅供学习参考,如侵犯您的权益,请联系我们处理。
不能下载?报告错误