
某小区800平米2层砖混结构住宅楼平面设计CAD图纸(含结构图)

某小区800平米2层砖混结构住宅楼平面设计CAD图纸(含结构图)
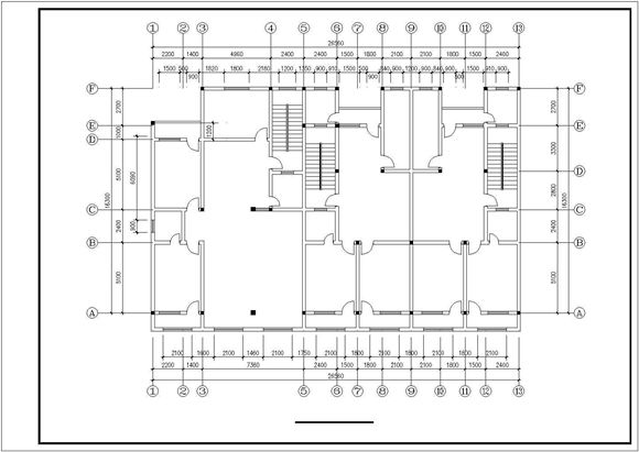
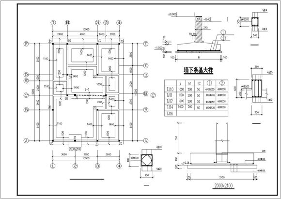
本资料为某小区800平米2层砖混结构住宅楼平面设计CAD图纸,其中包含:1-2层平面图,各层结构平面图,屋顶平面图等,可供设计师参考!

某小区800平米2层砖混结构住宅楼平面设计CAD图纸(含结构图)

某小区800平米2层砖混结构住宅楼平面设计CAD图纸(含结构图)
本资料为某小区800平米2层砖混结构住宅楼平面设计CAD图纸,其中包含:1-2层平面图,各层结构平面图,屋顶平面图等,可供设计师参考!
声明:资源收集自网络或用户分享,仅供学习参考,如侵犯您的权益,请联系我们处理。
不能下载?报告错误