
某工程钢板桩基坑支护设计图纸

某工程钢板桩基坑支护设计图纸

某工程钢板桩基坑支护设计图纸
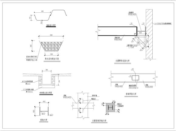
本资料为某工程钢板桩基坑支护设计图纸资料内容包括:示意图,环境图,平面布置图,大样图,剖面图等内容详实,可供设计师下载参考。

某工程钢板桩基坑支护设计图纸

某工程钢板桩基坑支护设计图纸

某工程钢板桩基坑支护设计图纸
本资料为某工程钢板桩基坑支护设计图纸资料内容包括:示意图,环境图,平面布置图,大样图,剖面图等内容详实,可供设计师下载参考。
声明:资源收集自网络或用户分享,仅供学习参考,如侵犯您的权益,请联系我们处理。
不能下载?报告错误