
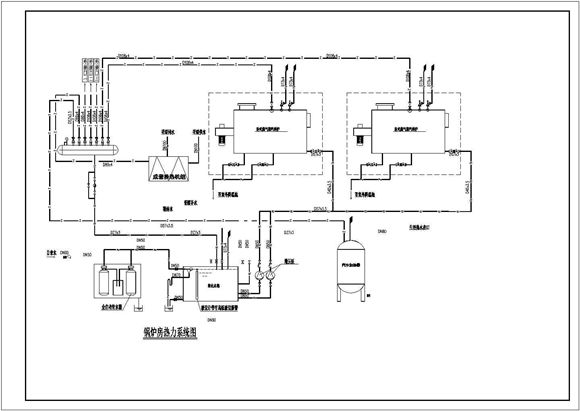
燃气锅炉热机设计图(附锅炉房设计规范)

燃气锅炉热机设计图(附锅炉房设计规范)

燃气锅炉热机设计图(附锅炉房设计规范)
燃气锅炉热机设计图(附锅炉房设计规范),锅炉房设计规范GB50041-2008,供参考

燃气锅炉热机设计图(附锅炉房设计规范)

燃气锅炉热机设计图(附锅炉房设计规范)

燃气锅炉热机设计图(附锅炉房设计规范)
燃气锅炉热机设计图(附锅炉房设计规范),锅炉房设计规范GB50041-2008,供参考
声明:资源收集自网络或用户分享,仅供学习参考,如侵犯您的权益,请联系我们处理。
不能下载?报告错误