
某居民区住宅三室两厅室内装修施工图(含效果图)

某居民区住宅三室两厅室内装修施工图(含效果图)

某居民区住宅三室两厅室内装修施工图(含效果图)
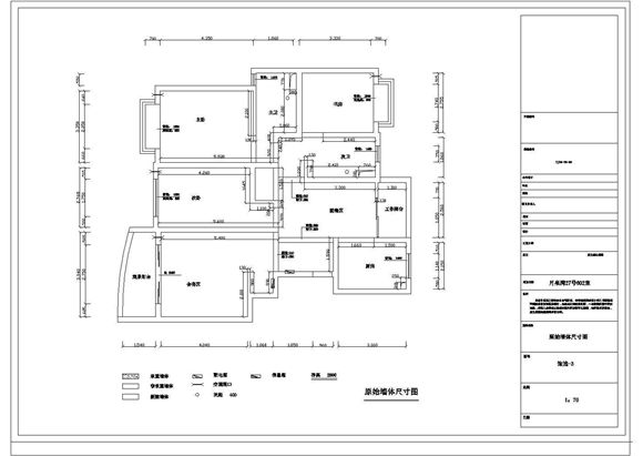
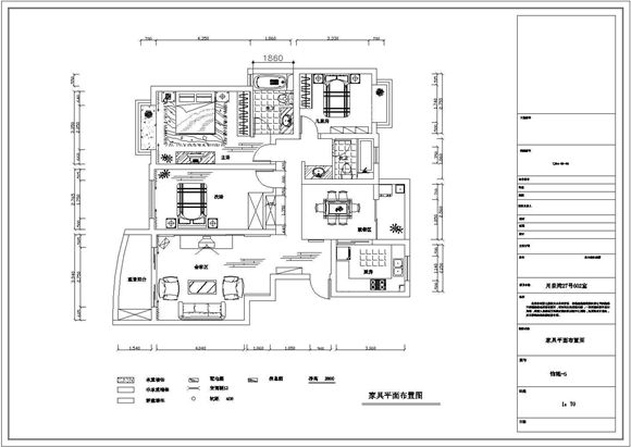
本资料为:某居民区住宅三室两厅室内装修施工图(含效果图),内容包括:墙体尺寸图、平面布置图、主卧立面图、次卧立面图、天花布置图、门窗套节点样图等图纸,可供参考,谢谢。

某居民区住宅三室两厅室内装修施工图(含效果图)

某居民区住宅三室两厅室内装修施工图(含效果图)

某居民区住宅三室两厅室内装修施工图(含效果图)
本资料为:某居民区住宅三室两厅室内装修施工图(含效果图),内容包括:墙体尺寸图、平面布置图、主卧立面图、次卧立面图、天花布置图、门窗套节点样图等图纸,可供参考,谢谢。
声明:资源收集自网络或用户分享,仅供学习参考,如侵犯您的权益,请联系我们处理。
不能下载?报告错误