当前位置:首页  资料内容详情

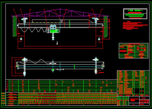
0.5 5吨电动悬挂式起重机系列图集

0.5-5吨电动悬挂式起重机系列图集 0.5~2tLX电悬无端/0.5~2tLX电悬有端/1~5tLX电动悬挂起重机

0.5 5吨电动悬挂式起重机系列图集

声明:本站为网络服务提供者及网络索引服务平台资源索引自网络/用户分享,如有版权问题,请联系站方删除。

不能下载?报告错误