规范网
更新
当前位置:
规范网
资料
内容详情
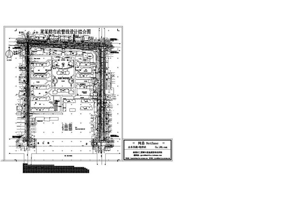
某道路市政综合管网图
某道路市政综合管网图
某道路市政综合管网图
某道路市政综合管网图。
加入收藏
下载文件
声明:资源收集自网络或用户分享,仅供学习参考,如侵犯您的权益,请联系我们处理。
不能下载?报告错误
下页:
居住区景观设计总平面图
相关推荐
坡面屋顶阵列前后间距计算和遮挡物影长计算公式V1.1
光伏专用电缆选型计算,汇流箱至逆变器电缆选型计算,短路电流计算,组串数量计算
风力发电经济评价模型案例
风电 水电效益测算分析表
分布式光伏工程报价参考计算表格
某道路市政综合管网图
下载文件
免费下载
标签
噪声标准
教学评语
电力规范
16g101-1
角钢标准
司法规范
医院总结
工程总结
电气
环境保护规范
电动车标准
平键标准
个人总结
学习总结
海洋规范
文物保护规范
上海市标准
饮用水标准
公司总结
讲话稿
企业工作计划
安全标准
螺母标准
中医药规范
管件标准
党员总结
甘肃省标准
活动总结