规范网
更新
当前位置:
首页
资料
内容详情
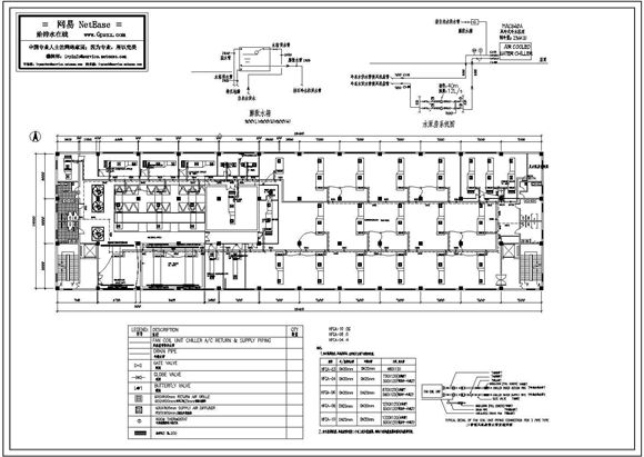
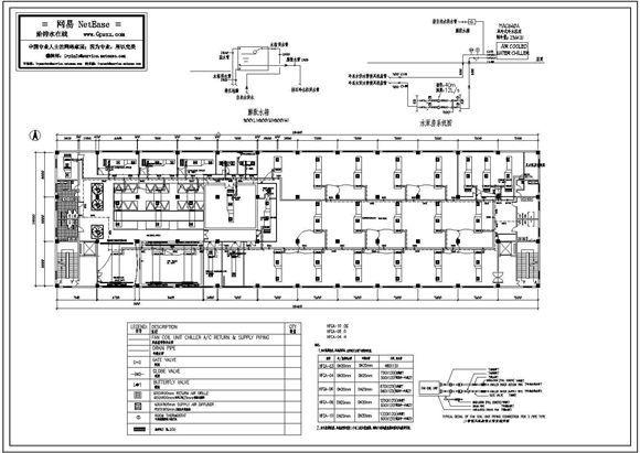
小型风冷式冷水机系统
帮助
举报
收藏
上传文档
下载
预览图
小型风冷式冷水机系统 小型风冷式冷水机系统 大家多提提意见!
小型风冷式冷水机系统
收藏
下载
声明:本站为网络服务提供者及网络索引服务平台资源索引自网络/用户分享,如有版权问题,请
联系
站方删除。
不能下载?报告错误
下页:
各型号风机安装基础尺寸及外形尺寸图
相关推荐
QGDW 11656-2025 配电线路金具技术规范
QGDW 11646-2025 7.2kV40.5kV绝缘管型母线技术规范
QGDW 11250.3-2025 中压开关技术规范 第3部分 中压开关柜
QGDW 11250.2-2025 中压开关技术规范 第2部分 环网柜(箱)
QGDW 10393.3-2025 变电站设计规范 第3部分 220kV变电站
小型风冷式冷水机系统
下载
免费下载
用户名称:
封利刚
注册时间:
2025-11-06
认证方式:
手机认证
资源帮助
上传文档
标签
锻件标准
弱电
新闻出版规范
金融规范
稀土规范
国密密码规范
技术总结
四川省标准
民用航空规范
湖南省标准
球墨铸铁管标准
螺母标准
认证认可规范
食用油标准
06ms201-3
最新更新
公司工作计划
管螺纹标准
申请书模板
10j301
平垫圈标准
工业标准
水利规范
酒店工作计划
工作通知
项目总结
活动总结
采购总结