当前位置:首页  资料内容详情

办公楼消防设计图

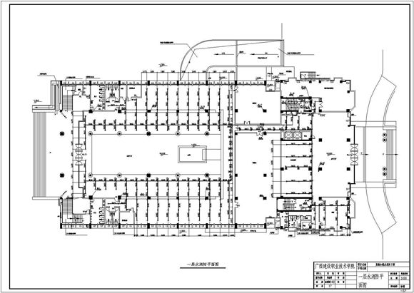
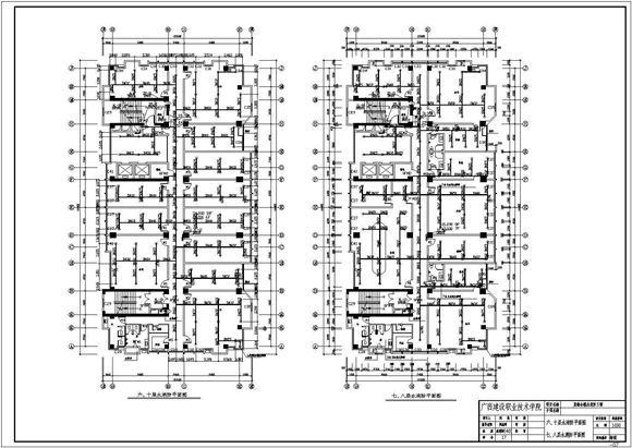
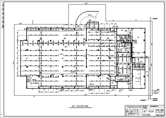
办公楼消防设计图 办公楼消防设计图 办公楼消防设计图 图纸包括地下一层水消防平面图、一层水消防平面图、二层水消防平面图、三层水消防平面图等,可供参考。

办公楼消防设计图

声明:本站为网络服务提供者及网络索引服务平台资源索引自网络/用户分享,如有版权问题,请联系站方删除。

不能下载?报告错误