
某火力发电厂自然通风冷却塔全套结构图

某火力发电厂自然通风冷却塔全套结构图

某火力发电厂自然通风冷却塔全套结构图
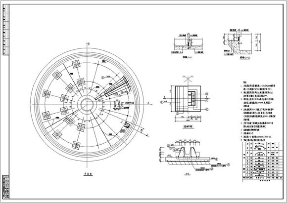
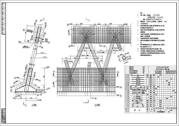
本套图纸为电厂冷却塔全套结构图纸,塔高30m,上口直径12.9m,下口直径23.5m.图纸内容包括:图纸目录、冷却塔桩平面布置图、结构设计说明、冷却塔布置图、穿环基管洞口加固图、通风管几何尺寸、通风筒

某火力发电厂自然通风冷却塔全套结构图

某火力发电厂自然通风冷却塔全套结构图

某火力发电厂自然通风冷却塔全套结构图
本套图纸为电厂冷却塔全套结构图纸,塔高30m,上口直径12.9m,下口直径23.5m.图纸内容包括:图纸目录、冷却塔桩平面布置图、结构设计说明、冷却塔布置图、穿环基管洞口加固图、通风管几何尺寸、通风筒
声明:资源收集自网络或用户分享,仅供学习参考,如侵犯您的权益,请联系我们处理。
不能下载?报告错误