
某地区加油站地下油罐基础设计施工图

某地区加油站地下油罐基础设计施工图

某地区加油站地下油罐基础设计施工图
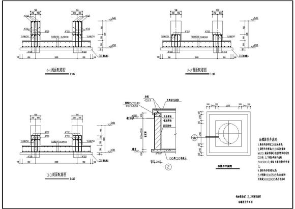
±0.00绝对标高以罐区外站区地坪标高定;本工程抗震设防烈度为8度0.2g第二组;材料:未注砼-C25;垫层采用C10素砼;¸Ö½î-HPB235¼¶¸Ö(∅)HRB335¼¶¸Ö(Φ);保护层厚

某地区加油站地下油罐基础设计施工图

某地区加油站地下油罐基础设计施工图

某地区加油站地下油罐基础设计施工图
±0.00绝对标高以罐区外站区地坪标高定;本工程抗震设防烈度为8度0.2g第二组;材料:未注砼-C25;垫层采用C10素砼;¸Ö½î-HPB235¼¶¸Ö(∅)HRB335¼¶¸Ö(Φ);保护层厚
声明:资源收集自网络或用户分享,仅供学习参考,如侵犯您的权益,请联系我们处理。
不能下载?报告错误