
西安某40m角钢塔基础设计整套图

西安某40m角钢塔基础设计整套图

西安某40m角钢塔基础设计整套图
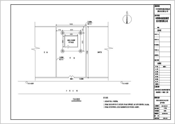
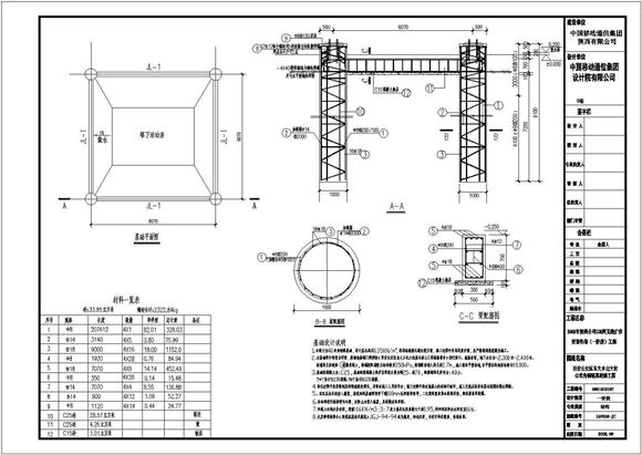
包含:基础设计说明、总平面图、散水及轻质机房基座施工图、40米角钢塔基础施工图、JGT-40-0.35地脚锚栓施工图、铁塔、机房接地平面图。补充说明:该设计为40米角钢塔基础,设计基本风压0.35K

西安某40m角钢塔基础设计整套图

西安某40m角钢塔基础设计整套图

西安某40m角钢塔基础设计整套图
包含:基础设计说明、总平面图、散水及轻质机房基座施工图、40米角钢塔基础施工图、JGT-40-0.35地脚锚栓施工图、铁塔、机房接地平面图。补充说明:该设计为40米角钢塔基础,设计基本风压0.35K
声明:资源收集自网络或用户分享,仅供学习参考,如侵犯您的权益,请联系我们处理。
不能下载?报告错误