
养鸡场设计图_养鸡场设计图cad图纸下载

养鸡场设计图_养鸡场设计图cad图纸下载

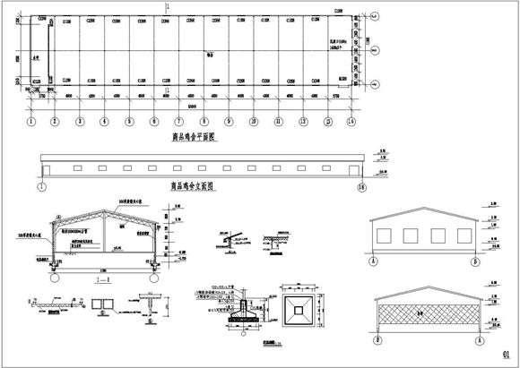
养鸡场设计图_养鸡场设计图cad图纸下载-(@www.guifan.net)
本资料为鸡场建筑设计方案图纸,图纸包含平面、立面、剖面、大样等。设计总体一般,可以为做养鸡场项目人员做参考之用。

养鸡场设计图_养鸡场设计图cad图纸下载

养鸡场设计图_养鸡场设计图cad图纸下载

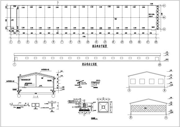
养鸡场设计图_养鸡场设计图cad图纸下载-(@www.guifan.net)
本资料为鸡场建筑设计方案图纸,图纸包含平面、立面、剖面、大样等。设计总体一般,可以为做养鸡场项目人员做参考之用。
声明:资源收集自网络或用户分享,仅供学习参考,如侵犯您的权益,请联系我们处理。
不能下载?报告错误