
某花园洋房户型图cad施工图纸

某花园洋房户型图cad施工图纸

某花园洋房户型图cad施工图纸
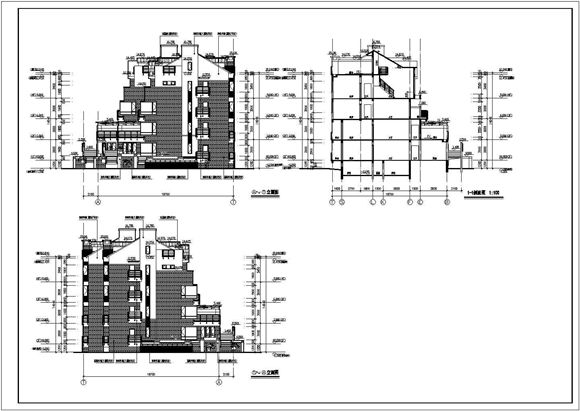
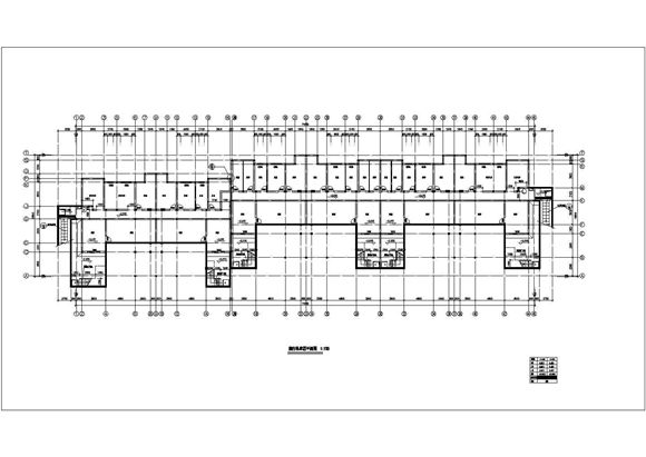
本资料为:某花园洋房户型图cad施工图纸,内容包括:立面图、剖面图、自行车库层平面图1:100、底层平面图1:100、二层平面图1:100等,可供参考。

某花园洋房户型图cad施工图纸

某花园洋房户型图cad施工图纸

某花园洋房户型图cad施工图纸
本资料为:某花园洋房户型图cad施工图纸,内容包括:立面图、剖面图、自行车库层平面图1:100、底层平面图1:100、二层平面图1:100等,可供参考。
声明:资源收集自网络或用户分享,仅供学习参考,如侵犯您的权益,请联系我们处理。
不能下载?报告错误