
雨水井、污水井、雨水口、管道连接详图

雨水井、污水井、雨水口、管道连接详图

雨水井、污水井、雨水口、管道连接详图
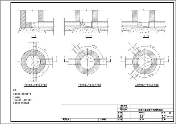
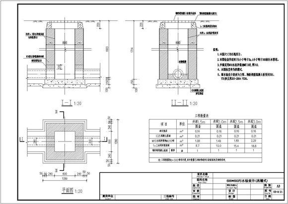
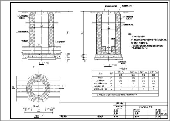
室外排水工程配套的雨污水井、雨水口、管道与井连接等详图。图纸内含:圆形污水检查井流槽形式图,600*600污水检查井(流槽式),污水检查井,800*800污水检查井(流槽式),600*600雨水检查井

雨水井、污水井、雨水口、管道连接详图

雨水井、污水井、雨水口、管道连接详图

雨水井、污水井、雨水口、管道连接详图
室外排水工程配套的雨污水井、雨水口、管道与井连接等详图。图纸内含:圆形污水检查井流槽形式图,600*600污水检查井(流槽式),污水检查井,800*800污水检查井(流槽式),600*600雨水检查井
声明:资源收集自网络或用户分享,仅供学习参考,如侵犯您的权益,请联系我们处理。
不能下载?报告错误