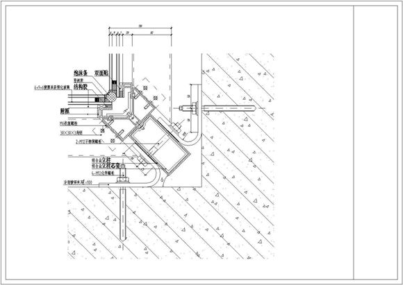
建筑工程各种常用玻璃幕墙做法节点详图 建筑工程各种常用玻璃幕墙做法节点详图 建筑工程各种常用玻璃幕墙做法节点详图 该工程为各种比较常规的玻璃幕墙做法节点详图,图纸内容主要包含:玻璃幕墙节点大样图,外墙阳角阴角节点大样图等。
建筑工程各种常用玻璃幕墙做法节点详图
建筑工程各种常用玻璃幕墙做法节点详图 建筑工程各种常用玻璃幕墙做法节点详图 建筑工程各种常用玻璃幕墙做法节点详图 该工程为各种比较常规的玻璃幕墙做法节点详图,图纸内容主要包含:玻璃幕墙节点大样图,外墙阳角阴角节点大样图等。
建筑工程各种常用玻璃幕墙做法节点详图