
多种(内、外)钢板天沟节点大样图

多种(内、外)钢板天沟节点大样图

多种(内、外)钢板天沟节点大样图
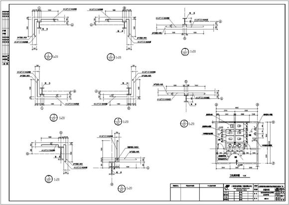
这是多种(内、外)钢板天沟节点大样图。包含:14种(内、外)钢板天沟节点大样图,1个-天沟计算软件—为“exe”格式。

多种(内、外)钢板天沟节点大样图

多种(内、外)钢板天沟节点大样图

多种(内、外)钢板天沟节点大样图
这是多种(内、外)钢板天沟节点大样图。包含:14种(内、外)钢板天沟节点大样图,1个-天沟计算软件—为“exe”格式。
声明:资源收集自网络或用户分享,仅供学习参考,如侵犯您的权益,请联系我们处理。
不能下载?报告错误